PM-0154B | Modèle de maison moderne avec toit plat
© Tous droits réservés au créateur des dessins
Chaque projet est unique, tout comme son budget.
En raison des fluctuations du marché et des particularités de votre projet, nos estimations de coûts sont établies sur mesure lors d’une première consultation gratuite avec notre équipe.
Prenez rendez-vous dès aujourd’hui pour une présentation personnalisée de nos modèles – sans frais et sans engagement en cliquant ici.
Type de bâtiment: Maison unifamiliale
Style architectural: Cubique / Moderne
Superficie: 1108p²
Nombre d'étages: 2
Type de fondation: Béton coulé
Garage: Sans garage
Nombre de chambres/bureaux: 2
Salles de bain: 2
Largeur du bâtiment: 35'
Profondeur du bâtiment: 23'
Sous-sol: Aucun sous-sol
Rez-de-jardin: Non
Mezzanine: Non
*Tous nos plans sont entièrement modifiables selon vos goûts et vos besoins.
Prenez rendez-vous ici pour une présentation de modèles par un technologue sans frais
L'excellence architecturale par Plan Maison Québec
Plan Maison Québec incarne l'avant-garde en matière de plans architecturaux, se spécialisant dans la création de modèle de maison moderne avec toit plat. Notre firme, reconnue pour son approche novatrice, se dédie à la conception de projets de construction et de rénovation qui allient esthétique contemporaine et fonctionnalité.
La signature d'un habitat contemporain
Faire le choix d'un modèle de maison moderne avec toit plat chez Plan Maison Québec est gage d'un design réfléchi et d'une réalisation impeccable. Chaque plan est soigneusement élaboré pour répondre à des standards de qualité élevés, avec la possibilité de personnalisation pour que chaque maison, chalet ou garage reflète l'identité de son propriétaire.
Harmonie extérieure et design avant-gardiste
Notre modèle phare, le modèle de maison moderne avec toit plat, est une véritable œuvre d'art architectural. Son toit plat n'est pas seulement un choix esthétique mais aussi une déclaration de modernité et de sophistication. Le revêtement extérieur, choisi pour sa durabilité et son élégance, s'associe harmonieusement aux fenestrations généreuses, assurant une transition fluide entre l'intérieur lumineux et l'extérieur verdoyant. La conception inclut une terrasse panoramique, pensée pour agrémenter les moments de détente et offrir une vue imprenable sur le paysage environnant.
Un intérieur conçu pour le bien-être
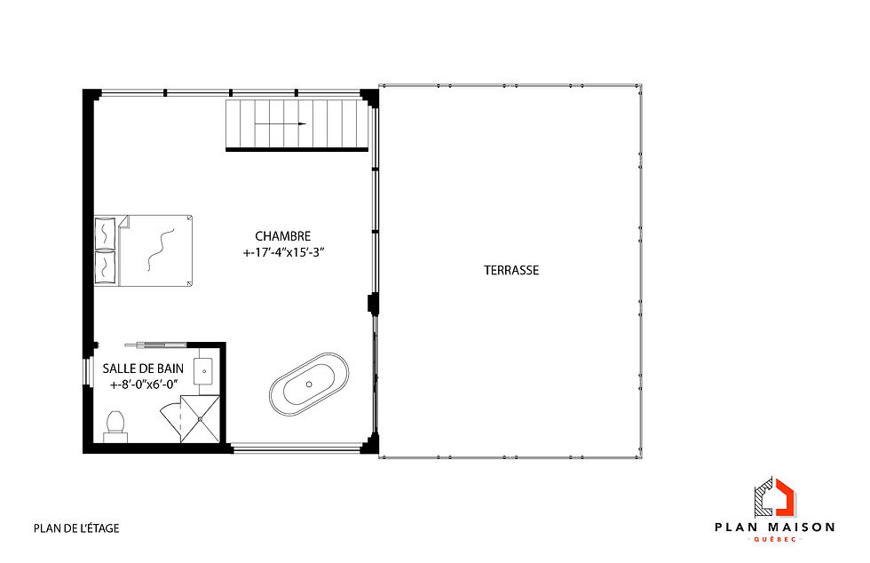
Au sein de ce modèle de maison moderne avec toit plat, la fonctionnalité rencontre le luxe. Avec une surface habitable de 1108p², les dimensions sont optimisées pour favoriser une circulation fluide. L'absence de garage et de sous-sol est une invitation à vivre dans l'épure et la simplicité, mettant en valeur les espaces de vie ouverts et accueillants. Le rez-de-chaussée accueille ses résidents avec une chambre douillette, une salle de lavage fonctionnelle, jouxtée par une salle de bain complète. La pièce de vie centrale est un hymne à la convivialité, où salon, cuisine et salle à manger s'entremêlent dans un espace ouvert, inondé de lumière naturelle et offrant un regard sur l'extérieur. À l'étage, l'intimité est préservée avec une suite parentale, comprenant une salle de bain privative, un espace de bain attenant et un accès privilégié à la terrasse supérieure, véritable havre de paix.
Un projet personnalisé à votre portée
Le modèle de maison moderne avec toit plat conçu par Plan Maison Québec n'attend que votre touche personnelle pour devenir le foyer que vous avez toujours imaginé. Nous vous encourageons à envisager ce modèle de maison pour vous permettre de réaliser votre projet de construction, ou de prendre rendez-vous dès maintenant avec un de nos technologues pour personnaliser le plan à vos besoins.
LES COÛTS DE CONSTRUCTION
Chaque projet est unique, tout comme son budget.
En raison des fluctuations du marché et des particularités de votre projet, nos estimations de coûts sont établies sur mesure lors d’une première consultation gratuite avec notre équipe.DÉTAILS DES PLANS :
Lorsque vous faites l’achat de plans de construction. Les plans incluent les éléments suivants:
. Les élévations
. Les vues en plan
. Les vues de toiture
. Les détails techniques
Avec ces plans, vous serez en mesure de faire la demande de permis auprès de votre ville, d'obtenir des soumissions par les entrepreneurs de votre région et faire la construction de la maison, avec un entrepreneur ou en auto-construction.
Veuillez prendre note que chaque ville / municipalité compte leurs propres réglementations en lien avec le zonage et l’urbaniste. Il est de votre devoir de vous assurer que les dimensions et les éléments sont admissibles à la demande de permis et respecte les marges de pourcentages de votre ville. Il est toujours possible de faire modifier les plans afin qu’ils respectent les exigences de votre région.
LISTE DES MATÉRIAUX
Il n'a pas de liste de matériaux inclus avec les plans achetés en ligne comme ce doit être fait sur mesure en fonction de vos choix. Ainsi, si vous souhaitez obtenir la liste des matériaux complète, vous pouvez sélectionner l'option à cet effet lors de l'achat de vos plans, et notre professionnel se fera un plaisir de travailler avec vous à ce sujet.
DÉTAILS DE CONSTRUCTION:
Tous les plans de maison neuve sont vendus avec la fiche des détails de la construction selon les standards : fondation en béton coulé ainsi que les détails techniques des coupes de mur type (selon les normes éco énergétique en vigueur).
CONFORMITÉ ET RESPONSABILITÉ :
L’acheteur a la responsabilité de vérifier avec sa ville, les normes d’implantation ainsi que les normes de construction en vigueur. Des frais pourront s’appliquer pour les modifications additionnelles exigées.
DROITS D'AUTEURS ET UTILISATION DES PLANS:
Que ce soit en format papier ou en PDF, les plans achetés sont protégés par la loi des droits d’auteurs. L’achat des plans ne vous permet pas de construire plus d’une (1) maison pour vous-même et vous ne pouvez pas vendre, modifier, copier les plans. Pour toutes modifications de vos plans de construction, veuillez communiquer avec Plan Maison Québec. Si vous souhaitez construire plusieurs fois le modèle, c'est tout à fait possible, mais prière de communiquer avec nous au info@planmaisonquebec.com afin de discuter de nos offres pour les entrepreneurs et professionnel de l'immobilier.


