JF-0341 | Plan de maison de 4 chambres avec suite parentale et garage
© Tous droits réservés au créateur des dessins
Chaque projet est unique, tout comme son budget.
En raison des fluctuations du marché et des particularités de votre projet, nos estimations de coûts sont établies sur mesure lors d’une première consultation gratuite avec notre équipe.
Prenez rendez-vous dès aujourd’hui pour une présentation personnalisée de nos modèles – sans frais et sans engagement en cliquant ici.
Type de bâtiment: Maison unifamiliale
Style architectural: Contemporain / Moderne
Superficie: 3900p²
Nombre d'étages: 2
Type de fondation: Béton coulé
Garage: Garage double
Nombre de chambres/bureaux: 4
Salles de bain: 2
Largeur du bâtiment: 75'
Profondeur du bâtiment: 31'
Sous-sol: Aucun sous-sol
Rez-de-jardin: Non
Mezzanine: Non
*Tous nos plans sont entièrement modifiables selon vos goûts et vos besoins.
Prenez rendez-vous ici pour une présentation de modèles par un technologue sans frais
Un savoir-faire architectural distinctif
Chez Plan Maison Québec, nous sommes fiers de proposer notre plan de maison de 4 chambres avec suite parentale et garage qui sont le fruit d'une expertise approfondie dans le domaine du dessin de plans de construction et de la rénovation. Nos technologues en architecture travaillent avec dévouement pour offrir des solutions qui allient l'art de la conception à la praticité essentielle à la vie quotidienne. Notre objectif est de transposer vos rêves en une réalité tangible, en créant des espaces qui reflètent la modernité, l'efficacité et l'élégance.
Des plans de qualité supérieure
Lorsque vous optez pour un plan de maison de 4 chambres avec suite parentale et garage chez Plan Maison Québec, vous investissez dans la qualité et l'adaptabilité. Nos modèles préconçus sont loin d'être figés; ils servent de base pour une personnalisation poussée qui permet d'ajuster chaque détail selon les préférences et les nécessités de nos clients. La qualité de nos plans garantit non seulement une construction fiable mais aussi une expérience de vie améliorée grâce à des espaces bien pensés et ergonomiques.
L'élégance de l'extérieur
Le design extérieur de notre plan de maison de 4 chambres avec suite parentale et garage est conçu pour impressionner tout en restant intemporel. La façade, un jeu de contraste entre la chaleur du bois et la pureté du stuc blanc, offre un aspect visuellement apaisant et fortement ancré dans les tendances actuelles. Le garage double, avec ses portes sophistiquées et son accès facile, est plus qu'un simple espace de stationnement; il s'agit d'une extension de la maison qui allie esthétique et fonctionnalité. La terrasse, accessible par la salle familiale, est pensée pour devenir un lieu de convivialité et de relaxation, offrant une vue imprenable sur l'environnement extérieur.
Intérieur raffiné et spacieux
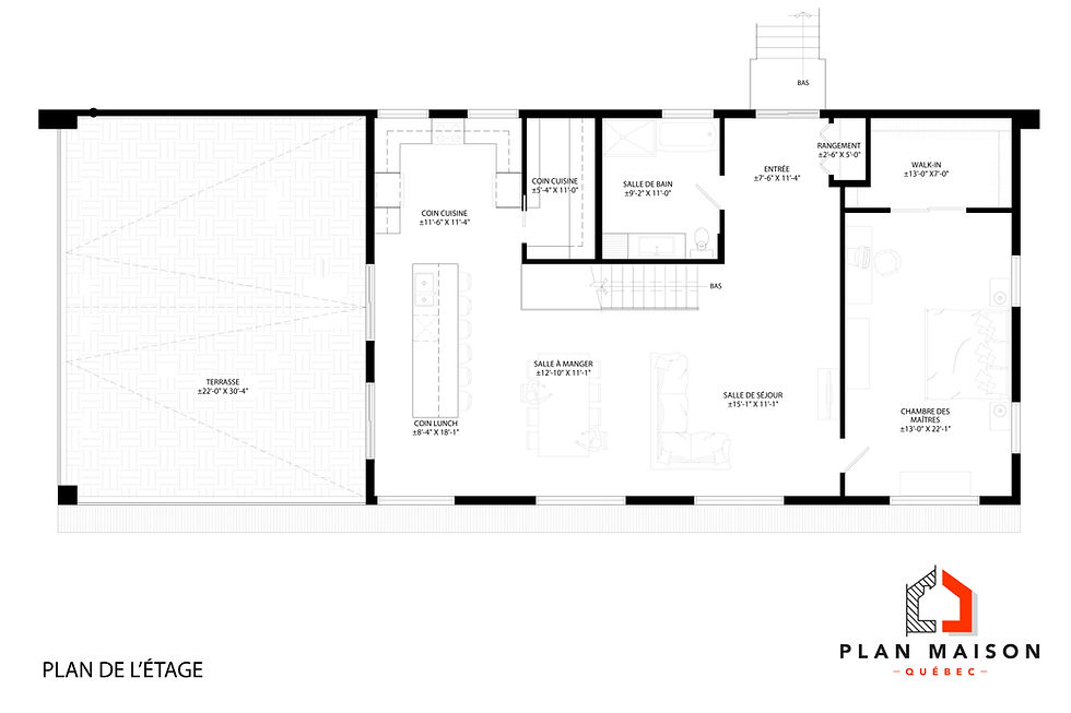
L'intérieur de ce plan de maison de 4 chambres avec suite parentale et garage promet une expérience de vie sans pareil. Avec une superficie généreuse de 3900p² et des dimensions optimisées de 75' X 31', chaque recoin est conçu pour maximiser l'usage et le confort. Le rez-de-jardin, directement accessible via le garage double, est un modèle d'efficacité, proposant trois chambres à coucher dotées de dressings individuels, une salle de bain complète, une salle de lavage pratique et une salle mécanique discrètement intégrée.
L'étage supérieur est le cœur de cette demeure, où la chambre principale se distingue par son dressing spacieux et sa proximité avec une salle de bain élégamment aménagée. La salle familiale, véritable espace de vie, marie le salon, la salle à manger et la cuisine dans un concept ouvert. La cuisine, avec son garde-manger, est conçue pour les fins gourmets, tandis que la cuisine s'ouvre sur un vaste espace convivial, idéal pour les moments en famille ou entre amis. La luminosité naturelle, grâce aux larges fenêtres, inonde l'étage, créant une ambiance chaleureuse et accueillante.
Un plan de maison de 4 chambres avec suite parentale et garage pour une vie harmonieuse
En conclusion, notre plan de maison de 4 chambres avec suite parentale et garage est conçu pour répondre aux besoins des familles modernes cherchant à allier confort, fonctionnalité et esthétisme. Avec des espaces optimisés et des matériaux de qualité, cette maison est le choix idéal pour ceux qui recherchent une demeure alliant luxe et praticité. Plan Maison Québec vous accompagne à chaque étape pour personnaliser ce modèle selon vos préférences, afin de créer la maison de vos rêves.
LES COÛTS DE CONSTRUCTION
Chaque projet est unique, tout comme son budget.
En raison des fluctuations du marché et des particularités de votre projet, nos estimations de coûts sont établies sur mesure lors d’une première consultation gratuite avec notre équipe.DÉTAILS DES PLANS :
Lorsque vous faites l’achat de plans de construction. Les plans incluent les éléments suivants:
. Les élévations
. Les vues en plan
. Les vues de toiture
. Les détails techniques
Avec ces plans, vous serez en mesure de faire la demande de permis auprès de votre ville, d'obtenir des soumissions par les entrepreneurs de votre région et faire la construction de la maison, avec un entrepreneur ou en auto-construction.
Veuillez prendre note que chaque ville / municipalité compte leurs propres réglementations en lien avec le zonage et l’urbaniste. Il est de votre devoir de vous assurer que les dimensions et les éléments sont admissibles à la demande de permis et respecte les marges de pourcentages de votre ville. Il est toujours possible de faire modifier les plans afin qu’ils respectent les exigences de votre région.
LISTE DES MATÉRIAUX
Il n'a pas de liste de matériaux inclus avec les plans achetés en ligne comme ce doit être fait sur mesure en fonction de vos choix. Ainsi, si vous souhaitez obtenir la liste des matériaux complète, vous pouvez sélectionner l'option à cet effet lors de l'achat de vos plans, et notre professionnel se fera un plaisir de travailler avec vous à ce sujet.
DÉTAILS DE CONSTRUCTION:
Tous les plans de maison neuve sont vendus avec la fiche des détails de la construction selon les standards : fondation en béton coulé ainsi que les détails techniques des coupes de mur type (selon les normes éco énergétique en vigueur).
CONFORMITÉ ET RESPONSABILITÉ :
L’acheteur a la responsabilité de vérifier avec sa ville, les normes d’implantation ainsi que les normes de construction en vigueur. Des frais pourront s’appliquer pour les modifications additionnelles exigées.
DROITS D'AUTEURS ET UTILISATION DES PLANS:
Que ce soit en format papier ou en PDF, les plans achetés sont protégés par la loi des droits d’auteurs. L’achat des plans ne vous permet pas de construire plus d’une (1) maison pour vous-même et vous ne pouvez pas vendre, modifier, copier les plans. Pour toutes modifications de vos plans de construction, veuillez communiquer avec Plan Maison Québec. Si vous souhaitez construire plusieurs fois le modèle, c'est tout à fait possible, mais prière de communiquer avec nous au info@planmaisonquebec.com afin de discuter de nos offres pour les entrepreneurs et professionnel de l'immobilier.


