PM-0178B | Plan de petite maison de plain-pied avec 2 chambres
© Tous droits réservés au créateur des dessins
Chaque projet est unique, tout comme son budget.
En raison des fluctuations du marché et des particularités de votre projet, nos estimations de coûts sont établies sur mesure lors d’une première consultation gratuite avec notre équipe.
Prenez rendez-vous dès aujourd’hui pour une présentation personnalisée de nos modèles – sans frais et sans engagement en cliquant ici.
Type de bâtiment: Maison unifamiliale / Chalet
Style architectural: Moderne / Rustique
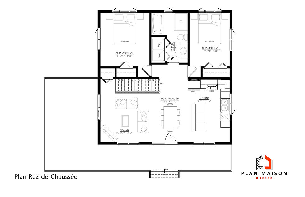
Superficie: 900p²
Nombre d'étages: 1
Type de fondation: Béton coulé
Garage: Sans garage
Nombre de chambres/bureaux: 2
Salles de bain: 1
Largeur du bâtiment: 30'
Profondeur du bâtiment: 30'
Sous-sol: Sous-sol non fini
Rez-de-jardin: Non
Mezzanine: Non
*Tous nos plans sont entièrement modifiables selon vos goûts et vos besoins.
Prenez rendez-vous ici pour une présentation de modèles par un technologue sans frais
L’entreprise Plan Maison Québec se démarque dans le domaine de l'architecture en offrant une gamme étendue de plans de construction et rénovation, taillés sur mesure pour les maisons, chalets et garages au Québec. Notre réputation s'édifie sur la précision et la qualité des plans que nous proposons, adaptés aux tendances actuelles et aux exigences techniques.
Professionnalisme et adaptabilité de ce plan de petite maison de plain-pied avec 2 chambres
Opter pour le plan de petite maison de plain-pied avec 2 chambres chez Plan Maison Québec, c'est choisir l'assurance d'une construction conforme aux normes élevées. Nos plans, conçus par des technologues experts, sont modulables selon vos désirs, alliant fonctionnalité et esthétique, tout en respectant les réglementations de construction.
Extérieur distinctif et fonctionnel
Le modèle présenté offre un extérieur séduisant, avec un style architectural contemporain. Le revêtement en bardage sombre se marie à la perfection avec la végétation environnante, offrant un contraste naturel et élégant. Sans garage, cette maison propose néanmoins une spacieuse terrasse permettant de jouir pleinement du paysage extérieur.
Intérieur confortable et optimisé
Ce plan de petite maison de plain-pied avec 2 chambres de 900 pieds carrés est conçue pour maximiser l'espace de vie sans garage, avec un sous-sol non fini offrant des possibilités d'aménagement supplémentaires. Deux chambres équipées de dressing et une salle de bain fonctionnelle avec espace de lavage composent l'intérieur. La pièce de vie familiale, avec cuisine, salle à manger et salon, s'ouvre sur la terrasse, invitant la lumière naturelle.
Un modèle de vie idéal
Ce plan de petite maison de plain-pied avec 2 chambres illustre parfaitement la capacité de Plan Maison Québec à allier esthétique, confort et praticité. La grande terrasse et le sous-sol adaptable sont des atouts indéniables pour ceux qui recherchent une maison avec caractère et potentiel d’évolution.
Engagement envers nos clients
Nous vous invitons à découvrir davantage sur ce plan de petite maison de plain-pied avec 2 chambres en visitant notre boutique en ligne. Pour des plans personnalisés ou des ajustements spécifiques, n’hésitez pas à nous contacter. Notre équipe est à votre disposition pour adapter le plan initial selon vos préférences.
LES COÛTS DE CONSTRUCTION
Chaque projet est unique, tout comme son budget.
En raison des fluctuations du marché et des particularités de votre projet, nos estimations de coûts sont établies sur mesure lors d’une première consultation gratuite avec notre équipe.DÉTAILS DES PLANS :
Lorsque vous faites l’achat de plans de construction. Les plans incluent les éléments suivants:
. Les élévations
. Les vues en plan
. Les vues de toiture
. Les détails techniques
Avec ces plans, vous serez en mesure de faire la demande de permis auprès de votre ville, d'obtenir des soumissions par les entrepreneurs de votre région et faire la construction de la maison, avec un entrepreneur ou en auto-construction.
Veuillez prendre note que chaque ville / municipalité compte leurs propres réglementations en lien avec le zonage et l’urbaniste. Il est de votre devoir de vous assurer que les dimensions et les éléments sont admissibles à la demande de permis et respecte les marges de pourcentages de votre ville. Il est toujours possible de faire modifier les plans afin qu’ils respectent les exigences de votre région.
LISTE DES MATÉRIAUX
Il n'a pas de liste de matériaux inclus avec les plans achetés en ligne comme ce doit être fait sur mesure en fonction de vos choix. Ainsi, si vous souhaitez obtenir la liste des matériaux complète, vous pouvez sélectionner l'option à cet effet lors de l'achat de vos plans, et notre professionnel se fera un plaisir de travailler avec vous à ce sujet.
DÉTAILS DE CONSTRUCTION:
Tous les plans de maison neuve sont vendus avec la fiche des détails de la construction selon les standards : fondation en béton coulé ainsi que les détails techniques des coupes de mur type (selon les normes éco énergétique en vigueur).
CONFORMITÉ ET RESPONSABILITÉ :
L’acheteur a la responsabilité de vérifier avec sa ville, les normes d’implantation ainsi que les normes de construction en vigueur. Des frais pourront s’appliquer pour les modifications additionnelles exigées.
DROITS D'AUTEURS ET UTILISATION DES PLANS:
Que ce soit en format papier ou en PDF, les plans achetés sont protégés par la loi des droits d’auteurs. L’achat des plans ne vous permet pas de construire plus d’une (1) maison pour vous-même et vous ne pouvez pas vendre, modifier, copier les plans. Pour toutes modifications de vos plans de construction, veuillez communiquer avec Plan Maison Québec. Si vous souhaitez construire plusieurs fois le modèle, c'est tout à fait possible, mais prière de communiquer avec nous au info@planmaisonquebec.com afin de discuter de nos offres pour les entrepreneurs et professionnel de l'immobilier.


