

Create Your First Project
Start adding your projects to your portfolio. Click on "Manage Projects" to get started
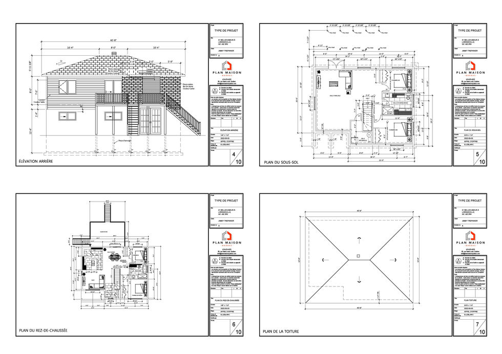
Plan de maison plain-pied avec sous-sol et galerie sur pieux
Type de projet
Plan de maison
Date
2022-05-03
Emplacement
Abitibi-Témiscamingue
Technologue en architecture
S. Leblanc
Le Plan de maison plain-pied avec sous-sol et galerie sur pieux représente une solution idéale pour les propriétaires recherchant une habitation fonctionnelle, durable et parfaitement adaptée aux terrains en pente. Ce type de conception architecturale se distingue par sa capacité à maximiser l’espace habitable tout en offrant une intégration harmonieuse avec son environnement naturel.
Dès le premier regard, cette propriété séduit par son style sobre et efficace, combinant des matériaux contemporains tels que le revêtement Canexel et des éléments de maçonnerie décorative. La toiture à quatre versants assure une excellente résistance aux intempéries, un avantage considérable dans le climat québécois.
Le rez-de-chaussée a été conçu pour offrir une aire de vie ouverte et lumineuse. On y retrouve un salon, une cuisine et une salle à manger connectés, favorisant la convivialité et la circulation fluide. La chambre principale ainsi qu’une chambre secondaire permettent de répondre aux besoins d’une famille ou d’un couple souhaitant un espace de travail à domicile. Une salle de bain complète vient compléter cet étage.
Le sous-sol, entièrement aménageable, constitue un atout majeur de ce Plan de maison plain-pied avec sous-sol et galerie sur pieux. Il comprend plusieurs chambres supplémentaires, une salle familiale spacieuse ainsi qu’un espace mécanique bien structuré. Cette configuration offre une grande flexibilité d’utilisation, que ce soit pour une famille nombreuse ou pour créer un logement secondaire.
L’un des éléments distinctifs de ce projet est sa galerie extérieure sur pieux, visible notamment sur les élévations latérales et arrière. Cette structure surélevée est idéale pour les terrains inclinés, permettant de profiter pleinement de l’espace extérieur tout en assurant une excellente stabilité du bâtiment. Elle crée également un espace de vie extérieur agréable et fonctionnel.
Sur le plan technique, la construction repose sur des fondations solides en béton avec isolation performante, assurant une efficacité énergétique optimale. Les murs extérieurs, composés de plusieurs couches d’isolants et de pare-air, garantissent un confort thermique supérieur en toute saison.
Ce modèle s’adresse particulièrement aux clients souhaitant un projet clé en main adaptable à différents contextes de terrain. Grâce à son design réfléchi et à sa configuration intelligente, ce Plan de maison plain-pied avec sous-sol et galerie sur pieux constitue un excellent choix pour une construction résidentielle durable et évolutive.









