

Create Your First Project
Start adding your projects to your portfolio. Click on "Manage Projects" to get started
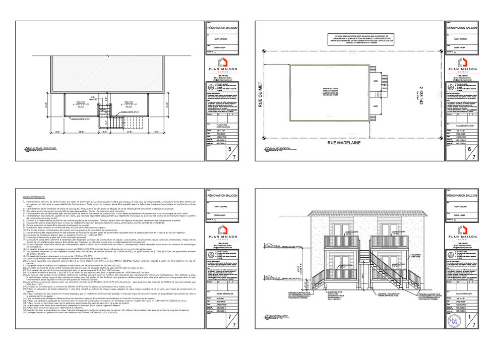
Rénovation balcon duplex extérieur
Type de projet
Agrandissement de maison
Date
2022-06-29
Emplacement
Laurentides
Technologue en architecture
Mélodie H
La Rénovation balcon duplex extérieur présentée ici illustre parfaitement l’expertise de Plan Maison Québec dans la conception de projets résidentiels adaptés aux réalités du climat québécois. Situé à Saint-Jérôme, ce projet vise la transformation complète de balcons existants sur un bâtiment résidentiel à deux étages, incluant l’ajout de structures robustes en bois, d’escaliers extérieurs et de garde-corps sécuritaires.
Ce projet se distingue par la conception de deux balcons superposés, chacun offrant un espace fonctionnel et durable. Les dimensions des balcons, d’environ 10 à 11 pieds de largeur par près de 7 pieds de profondeur, permettent une utilisation optimale pour les occupants. La structure repose sur des colonnes 6"x6" solidement ancrées sur des bases de béton préfabriquées, assurant une stabilité maximale et une longévité accrue.
L’intégration d’un escalier extérieur central facilite l’accès entre les niveaux, tout en respectant les normes du Code de construction. Les garde-corps, variant entre 36" et 42" de hauteur, assurent la sécurité des usagers tout en conservant une esthétique moderne et épurée.
Du point de vue technique, la structure du balcon est conçue avec des solives 2"x8" espacées à 16 pouces centre à centre, soutenues par des poutres triples pour une capacité portante optimale. Ce choix de matériaux garantit une excellente résistance aux charges et aux conditions climatiques du Québec, notamment les cycles de gel et dégel.
Ce type de Rénovation balcon duplex extérieur est particulièrement recherché pour les immeubles locatifs ou les duplex, puisqu’il améliore à la fois la valeur immobilière et le confort des occupants. En plus d’optimiser l’espace extérieur, il permet de moderniser l’apparence du bâtiment tout en respectant les normes municipales en vigueur.
Chez Plan Maison Québec, chaque projet est conçu sur mesure, en tenant compte des contraintes existantes, du terrain et des besoins spécifiques du client. Cette réalisation démontre l’importance d’une planification rigoureuse et d’un design réfléchi pour assurer un résultat durable, esthétique et conforme.











