PM-0136Q | 1 bedroom house plan with garage
© All rights reserved to the creator of the designs
Every project is unique, as is its budget.
Due to market fluctuations and the specific requirements of your project, our cost estimates are customized during a free initial consultation with our team.
Schedule a free, no-obligation personalized presentation of our designs today by clicking here.
Building type: Cottage / Single-family home
Architectural style: Scandinavian
Surface area: 1,015 sq ft
Number of floors: 1
Foundation type: Poured concrete
Garage: No garage
Number of bedrooms/offices: 1
Bathrooms: 1
Building width: 24'
Building depth: 37'
Basement: No basement
Garden level: No
Mezzanine: Yes
*All our plans are fully modifiable according to your tastes and needs.
Make an appointment here for a presentation of models by a technologist at no cost
Scandinavian design that's both functional and welcoming
Discover this superb one-bedroom house plan with a garage that combines modernity, comfort, and simplicity. Inspired by the Scandinavian architectural style, this single-family home captivates with its clean aesthetic, natural materials, and thoughtful interior layout. Perfectly suited to smaller lots or those located in the great outdoors, this single-story house with a mezzanine offers a peaceful living experience in a warm and bright setting.
A distinctive and modern façade
The exterior appearance of this house leaves no one indifferent. Its gable roof, natural wood cladding, and large glass openings immediately evoke Nordic style, while blending harmoniously into a wooded or mountainous setting. The well-defined entrance porch, integrated into a contemporary black volume, adds a touch of elegance to the main façade. At the rear, the vast glass wall extends the view outside and floods the interior space with natural light.
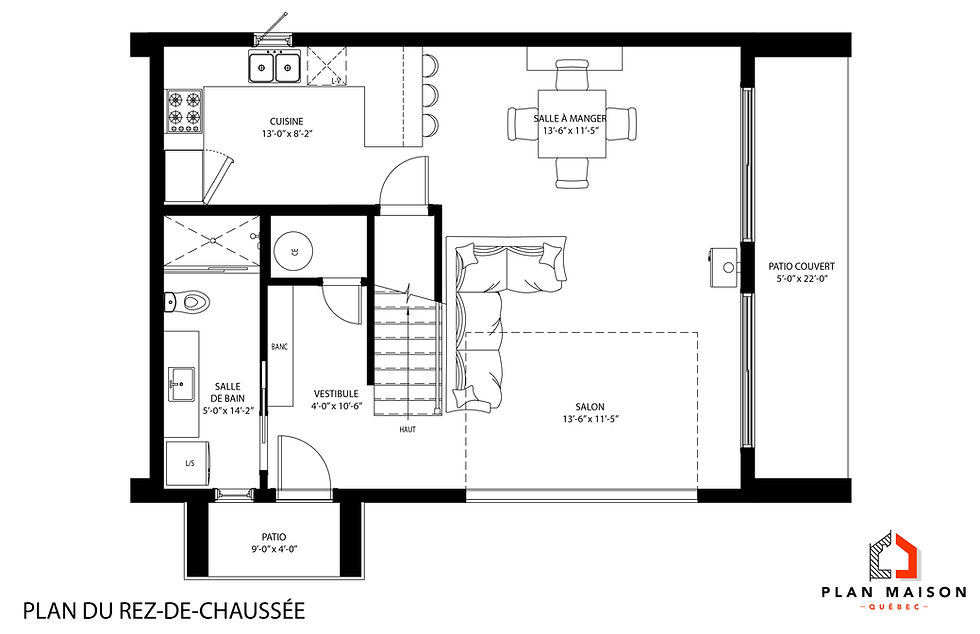
A perfectly optimized ground floor
The ground floor of this 1,015 sq. ft. home emphasizes simplicity and functionality. Upon entering, a closed vestibule with built-in storage keeps the space organized. The heart of the home is structured around an open concept combining the kitchen, dining room, and living room. The L-shaped kitchen features a cozy lunch area, perfect for meals on the go. Nearby, the dining room, bathed in natural light, offers direct access to a 22-foot-long covered patio, ideal for al fresco dining or relaxing moments.
The living room, with a generous 13'-6" x 11'-5", offers a comfortable space for relaxing, entertaining, or simply admiring the view through sliding glass doors. Set back, a 14'-2" full bathroom with a washer and dryer area provides everything you need for everyday life.
A multifunctional mezzanine overlooking the ground floor
One of the major assets of this one-bedroom house plan with garage is undoubtedly its mezzanine, which opens onto the main living space. Accessible via a central staircase, this 23' x 11' room can be used as a master bedroom, reading nook, office, or even a relaxation area. A large vertical gable window allows light to diffuse generously up to the upper floor, accentuating the impression of space and freedom.
An ideal layout for couples or retirees
This house model is ideal for a couple without children, an active retiree, or a second cottage project. With its spacious bedroom, well-equipped bathroom, and open spaces with a welcoming atmosphere, this house meets the needs of modern comfort while maintaining a compact and economical footprint.
A plan designed to last
Built on a poured concrete foundation, with no basement, this house offers a solid and durable foundation. The structure also provides excellent thermal insulation, essential for weathering Quebec winters. In addition, the addition of an attached garage (optional depending on needs) provides additional storage space for a car or tools, bicycles, or sports equipment.
CONSTRUCTION COSTS
Every project is unique, as is its budget.
Due to market fluctuations and the specific requirements of your project, our cost estimates are customized during a free initial consultation with our team.
Schedule a free, no-obligation personalized presentation of our designs today by clicking here.
CONSTRUCTION COSTS
The construction costs indicated on our site are approximate and are provided for information purposes only. Please note that prices may vary depending on: the season, the contractor and the materials. The prices mentioned are estimated according to the illustration.
The minimum cost corresponds to a self-build.
The maximum cost corresponds to a turnkey project.
In its amounts, everything is included: excavation, formwork and concrete, the entire shell of the project, exterior cladding with standard materials, interior finishing with standard materials, built-in furniture, plumbing with standard accessories, electricity according to the building code.
What is excluded:
The land, landscaping and anything that does not directly affect the construction of the project itself. Example: surveyor's fees, heated floors (at the customer's choice), air exchanger, any outdoor patio, the general conditions of the contractor which may vary according to each company, the connection with Hydro Quebec and the municipality, septic tank and well.
* If you want to get the right cost for all factors of the project, including those specific to your situation or your land. Add the "Budget Estimate" option during your purchase to work with one of our professionals who will produce, in collaboration with you, a detailed estimate taking into account all aspects of your project.
LIST OF MATERIALS
There is no list of materials included with the plans purchased online as it must be custom made according to your choices. So, if you would like to get the complete list of materials, you can select the option to this effect when purchasing your plans, and our professional will be happy to work with you on this.
CONSTRUCTION DETAILS:
All new house plans are sold with the construction details sheet according to standards: poured concrete foundation as well as the technical details of typical wall sections (according to current eco-energy standards).
COMPLIANCE AND RESPONSIBILITY:
It is the buyer's responsibility to check with their city for implantation standards and current construction standards. Fees may apply for additional modifications required.
COPYRIGHT AND USE OF PLANS:
Whether in paper or PDF format, purchased plans are protected by copyright law. Purchasing plans does not allow you to build more than one (1) house for yourself and you cannot sell, modify, or copy the plans. For any modifications to your construction plans, please contact Plan Maison Québec. If you wish to build the model several times, this is entirely possible, but please contact us at info@planmaisonquebec.com to discuss our offers for contractors and real estate professionals.


