PM-0404 | Two-family house plan
© All rights reserved to the designer.
Every project is unique, as is its budget.
Due to market fluctuations and the specific requirements of your project, our cost estimates are customized during a free initial consultation with our team.
Schedule a free, no-obligation personalized presentation of our designs today by clicking here.
Building type: Semi-detached and Bi-generational / Single-family home
Architectural style: Contemporary / Traditional
Surface area: 3,780 sq ft
Number of floors: 2
Foundation type: Poured concrete
Garage: No garage
Number of bedrooms/offices: 5
Bathrooms: 3
Building width: 32'-6"
Building depth: 40'
Basement: Finished basement
Garden level: No
Mezzanine: No
*All our plans are fully modifiable according to your tastes and needs.
Make an appointment here for a presentation of models by a technologist at no cost
Two-family house plan: A spacious and bright bi-generational semi-detached
The two-family house plan presented here perfectly illustrates Plan Maison Québec's vision: to create homes that are aesthetically pleasing, functional, and adapted to today's family needs. With its architectural style combining contemporary and traditional, this semi-detached house captivates with its elegant symmetry, textured brown wood and natural stone siding, and vast interior spaces designed to provide comfort and privacy for two separate households.
A facade with a noble and timeless appearance
From the first glance, this residence exudes a sense of solidity and elegance. The combination of deep brown wood siding and light stone cladding creates a harmonious contrast that gives the facade a warm and prestigious appearance. The gable roof and large glass openings accentuate the modernity of the design while allowing abundant natural light to enter each room. This two-family house plan is ideal for those looking for a distinctive model, anchored in a simple and sustainable style.
A welcoming and well-designed ground floor
On the ground floor, the space is organized around an open living area combining the living room, dining room, and kitchen. Thanks to the generous windows and slightly broken angles of the floor plan, light circulates freely, highlighting the spaciousness and conviviality of the main room.
The kitchen with its large central island is perfect for cooking with family or entertaining guests, while the adjoining dining room offers a direct view of the backyard. The spacious and welcoming living room is distinguished by its rectilinear layout and its view of the garden, providing an ideal setting for relaxing moments.
This level also includes a large bedroom, a full bathroom with a bathtub and separate shower, and a practical cloakroom at the entrance. This versatile ground floor can therefore be suitable for parents, guests, or even as independent accommodation in a bi-generational setting.
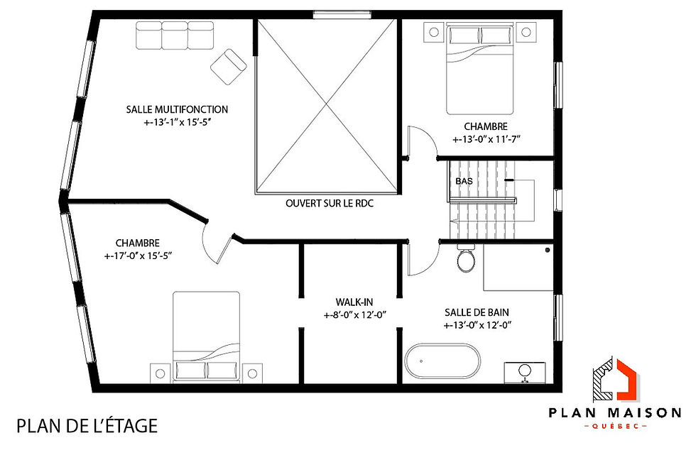
A floor dedicated to family comfort
Upstairs, the two-family house plan emphasizes a functional layout where privacy and comfort are paramount. There are three spacious bedrooms, including a master suite with a large 8' x 12' walk-in closet. The impressively large en-suite bathroom includes a freestanding bathtub and a separate shower, providing a truly relaxing space.
A multipurpose room completes the upper floor: ideal as a games room, office, or TV area, it opens onto the ground floor thanks to a visual mezzanine that accentuates the feeling of spaciousness and light. This floor offers a perfect balance between private space and common areas.
A design adapted to today's needs
Designed for two families or a multi-generational home, this 3,780 sq. ft. two-story house maximizes every available square foot. The poured concrete foundation ensures structural strength, while the finished basement offers additional development potential, whether for a secondary suite, a home office, or a private gym.
The absence of an integrated garage frees up more living space and allows the land to be developed according to individual preferences, whether for double parking, a green space, or an outdoor patio.
The quality of Plan Maison Québec
Choosing a two-family house plan designed by Plan Maison Québec means benefiting from a custom design, crafted by experienced architectural technologists. This model can be customized to your needs: adding a garage, expanding the bedrooms, modifying the siding, or optimizing energy efficiency. The goal is simple: to offer you a beautiful, practical home that fits your lifestyle, whether you are a large family or want to invest in an income-generating real estate project.
CONSTRUCTION COSTS
Every project is unique, as is its budget.
Due to market fluctuations and the specific requirements of your project, our cost estimates are customized during a free initial consultation with our team.
Schedule a free, no-obligation personalized presentation of our designs today by clicking here.
PLANS DETAILS:
When you purchase building plans. The plans include the following:
. The elevations
. Plan views
. Roof views
. Technical details
With these plans, you will be able to apply for permits from your city, obtain quotes from contractors in your area and build the house, with a contractor or by self-construction.
Please note that each city/municipality has its own regulations related to zoning and town planning. It is your duty to ensure that the dimensions and elements are eligible for the permit application and respect the percentage margins of your city. It is always possible to have the plans modified so that they meet the requirements of your region.
LIST OF MATERIALS
There is no list of materials included with plans purchased online as this must be custom made based on your choices. So, if you want to get the complete materials list, you can select the option for this when purchasing your plans, and our professional will be happy to work with you on this.
CONSTRUCTION DETAILS:
All new house plans are sold with the construction details sheet according to the standards: poured concrete foundation as well as the technical details of the typical wall sections (according to the energy efficiency standards in force).
COMPLIANCE AND RESPONSIBILITY:
The buyer is responsible for checking with his city, the installation standards as well as the construction standards in force. Fees may apply for additional modifications required.
COPYRIGHT AND USE OF PLANS:
Whether in paper format or in PDF, the plans purchased are protected by copyright law. Purchasing the plans does not entitle you to build more than one (1) house for yourself and you may not sell, modify, copy the plans. For any changes to your construction plans, please contact Plan Maison Québec. If you wish to build the model several times, it is entirely possible, but please contact us at info@planmaisonquebec.com to discuss our offers for entrepreneurs and real estate professionals.


