
Create Your First Project
Start adding your projects to your portfolio. Click on "Manage Projects" to get started
Maison cubique toit plat avec terrasse et garage intégré
Type de projet
Plan de maison
Date
21-02-24
Emplacement
Québec
Technologue en architecture
Martin B.
La maison cubique toit plat avec terrasse et garage intégré présentée dans ce projet incarne parfaitement les tendances actuelles en architecture résidentielle. Avec ses lignes droites, ses volumes simples et son design épuré, cette habitation se distingue par son style contemporain assumé et sa fonctionnalité optimisée.
Dès le premier regard, cette maison séduit par sa forme cubique et son toit plat, caractéristiques emblématiques des constructions modernes. Ce type d’architecture permet non seulement une esthétique minimaliste, mais également une optimisation maximale de l’espace intérieur. Le garage intégré s’inscrit naturellement dans le volume principal, offrant une solution pratique sans compromettre l’harmonie visuelle du bâtiment.
Le rez-de-chaussée a été conçu pour favoriser une aire de vie ouverte et conviviale. Le salon, la salle à manger et la cuisine se partagent un vaste espace lumineux grâce à de grandes ouvertures sur l’extérieur. Cette configuration crée une sensation de grandeur et permet une circulation fluide entre les différentes zones. L’accès direct à la terrasse extérieure prolonge naturellement l’espace de vie vers l’extérieur, idéal pour profiter des beaux jours.
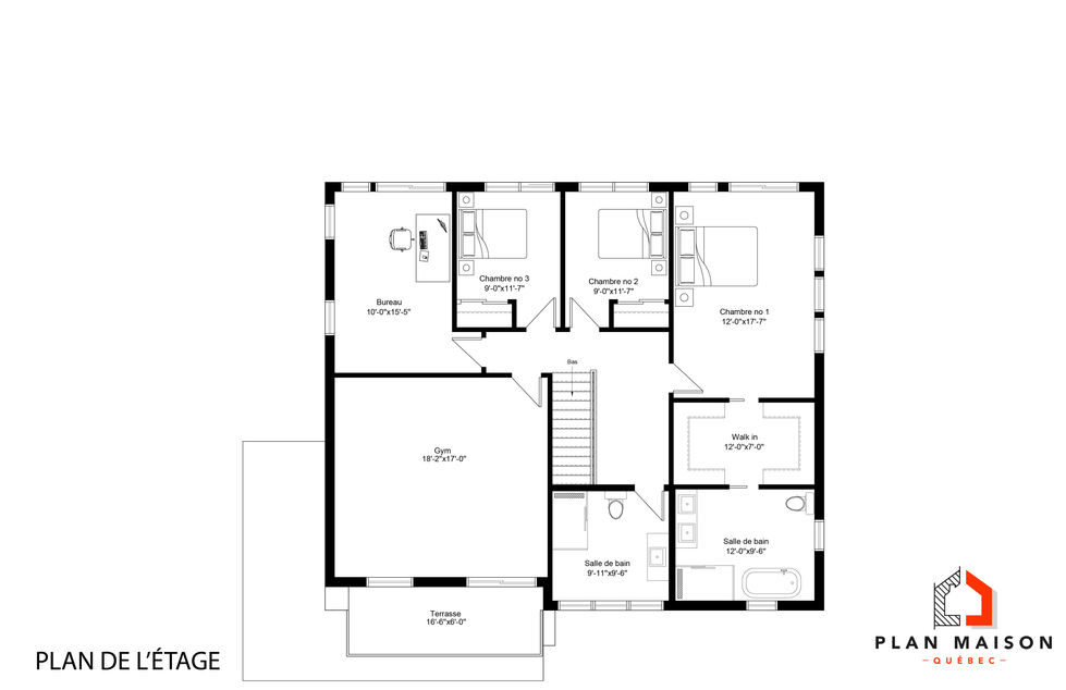
À l’étage, la maison cubique toit plat avec terrasse et garage intégré propose un aménagement fonctionnel comprenant plusieurs chambres, un bureau et des salles de bain bien réparties. La chambre principale bénéficie d’un walk-in spacieux et d’une salle de bain attenante, assurant confort et intimité. Les autres chambres sont parfaitement adaptées pour une famille ou pour accueillir des invités.
L’un des atouts majeurs de cette propriété est sa grande terrasse surélevée, accessible par un escalier extérieur. Cet espace devient une véritable pièce de vie supplémentaire durant la saison estivale. Il offre une vue dégagée et permet d’aménager un coin détente ou repas extérieur en toute tranquillité.
La présence d’un toit plat permet également d’envisager différentes options d’aménagement, comme une toiture végétalisée ou une terrasse additionnelle. Ce type de conception est particulièrement apprécié pour son potentiel d’évolution et sa performance esthétique.
En complément, le projet inclut des espaces utilitaires essentiels tels qu’une salle mécanique, une salle de bain au rez-de-chaussée et des zones de rangement bien intégrées. Chaque élément a été pensé pour maximiser l’efficacité de l’espace tout en conservant une esthétique moderne.
Cette maison cubique toit plat avec terrasse et garage intégré représente une solution idéale pour les personnes recherchant une habitation contemporaine, fonctionnelle et parfaitement adaptée aux réalités actuelles. Elle combine design, confort et optimisation dans un ensemble cohérent et durable.










