
Create Your First Project
Start adding your projects to your portfolio. Click on "Manage Projects" to get started
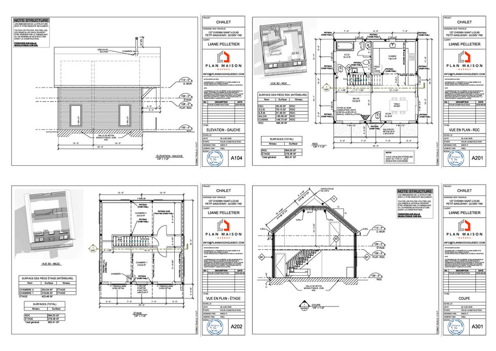
Plan de chalet avec mezzanine et balcon
Type de projet
Plan de chalet
Date
29 juin 2025
Emplacement
Capitale-Nationale
Technologue en architecture
Areg P.
Le Plan de chalet avec mezzanine et balcon présenté ici illustre parfaitement l’équilibre entre confort moderne et charme architectural traditionnel. Conçu pour s’intégrer harmonieusement dans un environnement naturel, ce projet de chalet se distingue par sa volumétrie simple, sa toiture à deux versants et ses matériaux extérieurs évoquant le style rustique québécois.
Dès l’extérieur, ce Plan de chalet avec mezzanine et balcon attire par sa façade accueillante, mise en valeur par un balcon en façade qui prolonge l’espace de vie vers l’extérieur. Cet élément architectural offre un espace idéal pour profiter de la nature, que ce soit en forêt, en montagne ou en bord de l’eau. La présence de grandes ouvertures favorise une luminosité naturelle abondante, créant une ambiance chaleureuse à l’intérieur.
Le rez-de-chaussée a été pensé pour maximiser la convivialité. On y retrouve une aire ouverte regroupant le salon, la salle à manger et la cuisine, favorisant les interactions et la fluidité des déplacements. Le salon est centré autour d’un foyer au bois, élément incontournable dans ce type de projet, renforçant le caractère chaleureux du Plan de chalet avec mezzanine et balcon. Une salle de bain complète ainsi que des espaces fonctionnels viennent compléter ce niveau.
À l’étage, la mezzanine constitue un véritable atout. Elle permet de créer un espace polyvalent tout en offrant une vue plongeante sur le rez-de-chaussée. Ce type d’aménagement est très recherché dans les projets de chalets, car il accentue la sensation de volume et de grandeur. Deux chambres confortables y sont aménagées, offrant intimité et fonctionnalité pour les occupants.
Ce Plan de chalet avec mezzanine et balcon repose sur une fondation en dalle de béton monolithique, une solution durable et adaptée à plusieurs types de terrains. La structure du bâtiment, incluant les poutres et éléments porteurs, est conçue pour assurer solidité et performance à long terme. L’enveloppe du bâtiment intègre également des standards d’isolation performants, contribuant à une excellente efficacité énergétique.
En résumé, ce projet représente une solution idéale pour toute personne souhaitant construire un chalet à la fois esthétique, fonctionnel et optimisé pour le climat québécois. Grâce à son design réfléchi et ses espaces bien distribués, ce Plan de chalet avec mezzanine et balcon répond aux besoins des familles comme des amateurs de résidences secondaires.










