
Create Your First Project
Start adding your projects to your portfolio. Click on "Manage Projects" to get started
Plan de grande maison familiale avec garage double
Type de projet
Plan de maison
Date
04-04-24
Emplacement
Magog
Technologue en architecture
Jean François P.
Ce plan de grande maison familiale avec garage double se distingue par ses volumes généreux, son aménagement intelligent et sa capacité à répondre aux besoins des familles nombreuses. Conçu pour offrir confort, fonctionnalité et fluidité de circulation, ce modèle propose une organisation optimale sur plusieurs niveaux.
Dès l’entrée, cette résidence impressionne par son espace bien structuré. Le rez-de-chaussée accueille une vaste aire de vie ouverte combinant salon, salle à manger et cuisine. Cet espace central, lumineux et convivial, est idéal pour les moments en famille comme pour recevoir. La cuisine avec îlot central offre une grande surface de travail, tandis que les nombreuses fenêtres permettent un apport important de lumière naturelle.
Ce plan de grande maison familiale avec garage double intègre également un bureau fermé, parfait pour le télétravail, ainsi qu’une buanderie fonctionnelle et une salle d’eau stratégiquement positionnée. Le garage double, directement accessible depuis l’intérieur, constitue un avantage majeur en offrant un espace pratique pour deux véhicules ainsi que du rangement supplémentaire.
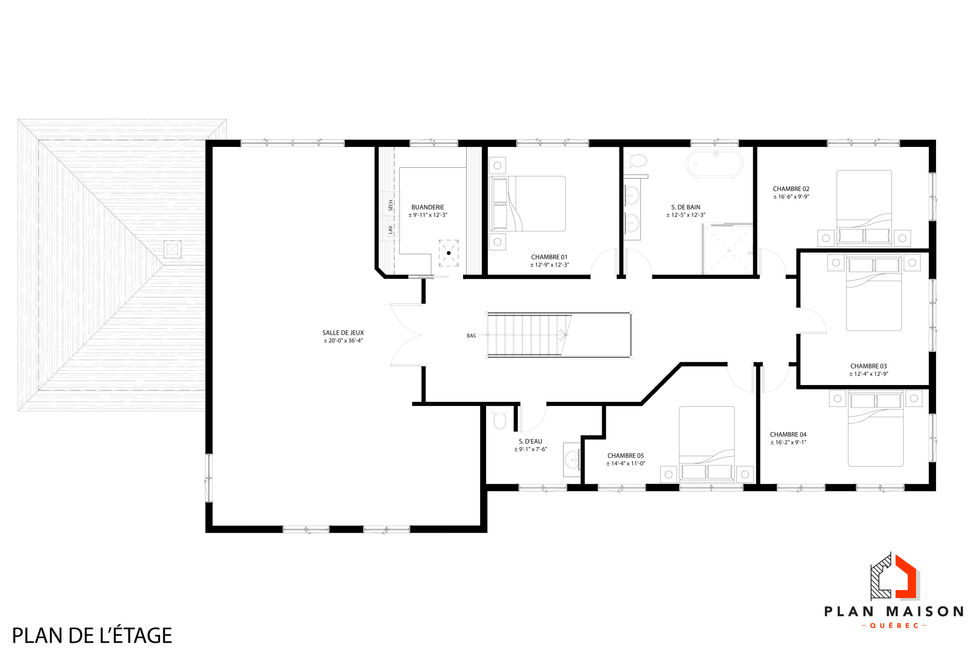
À l’étage, l’organisation est pensée pour maximiser le confort de chaque occupant. On y retrouve plusieurs chambres de belles dimensions, idéales pour une famille nombreuse. Une grande salle de bain complète vient répondre aux besoins quotidiens, tandis qu’une salle de jeux centrale crée un espace dédié aux loisirs et à la détente. Cette configuration permet de séparer efficacement les zones de repos et les espaces d’activité.
Le sous-sol ajoute une dimension supplémentaire à ce plan de grande maison familiale avec garage double. Il comprend une vaste salle familiale, parfaite pour aménager un cinéma maison, une salle de jeux ou un espace détente. Des zones de rangement ainsi qu’une salle mécanique complètent ce niveau, assurant une utilisation optimale de l’espace disponible.
Sur le plan architectural, cette maison présente un style classique et intemporel, caractérisé par des lignes épurées et une volumétrie équilibrée. La façade met en valeur le garage double et une entrée couverte élégante, tandis que l’arrière de la maison propose de grandes ouvertures vers l’extérieur, favorisant la luminosité et le lien avec l’environnement.
Ce projet représente une solution idéale pour les familles à la recherche d’un espace de vie spacieux, fonctionnel et bien structuré. Ce plan de grande maison familiale avec garage double combine parfaitement esthétique, confort et efficacité pour répondre aux exigences actuelles du marché résidentiel.












