
Create Your First Project
Start adding your projects to your portfolio. Click on "Manage Projects" to get started
Plan de maison cottage avec garage
Type de projet
Plan de maison
Date
22/03/2021
Emplacement
Laurentides
Technologue en architecture
Marie-ange D
Ce Plan de maison cottage avec garage se distingue par son architecture chaleureuse et intemporelle, parfaitement adaptée aux besoins des familles québécoises. Conçu avec une attention particulière aux détails, ce projet offre un équilibre idéal entre esthétique traditionnelle et fonctionnalité moderne.
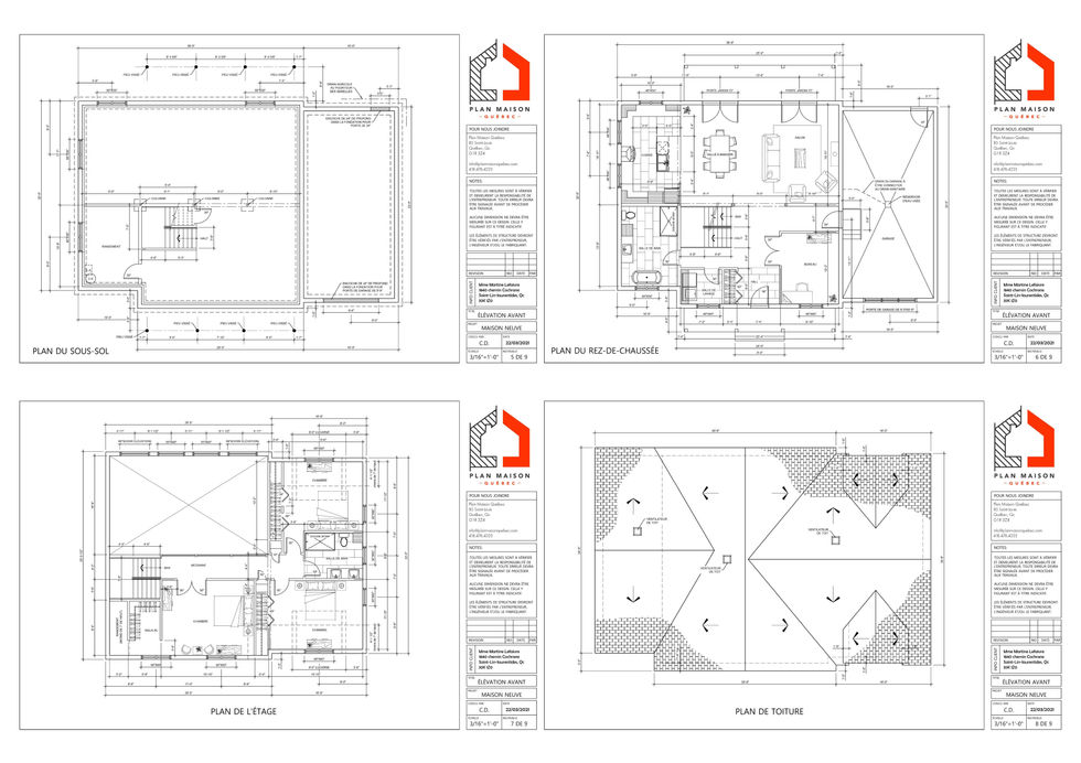
Dès l’élévation avant visible sur le plan , on remarque un style cottage marqué par une toiture à deux versants, des lucarnes décoratives et une façade symétrique qui inspire confiance et élégance. Le garage intégré sur le côté droit ajoute une dimension pratique essentielle, tout en s’intégrant harmonieusement au volume principal de la maison.
Le rez-de-chaussée propose un espace de vie ouvert et lumineux. La cuisine, bien positionnée, communique directement avec la salle à manger et le salon, créant un environnement convivial parfait pour la vie quotidienne. Une salle de bain complète, une salle de lavage et un bureau complètent ce niveau, offrant un maximum de fonctionnalité pour une famille active.
À l’étage, la disposition des pièces favorise l’intimité et le confort. On y retrouve plusieurs chambres spacieuses, dont une chambre principale avec walk-in, ainsi qu’une salle de bain bien dimensionnée. La présence d’une mezzanine ajoute un cachet architectural intéressant tout en permettant une ouverture visuelle vers le rez-de-chaussée.
Le sous-sol, illustré dans le plan , offre un grand potentiel d’aménagement. Il peut être transformé en espace de vie supplémentaire, en salle familiale ou en rangement selon les besoins futurs du propriétaire.
Ce Plan de maison cottage avec garage se distingue également par sa conception structurale solide. Les détails techniques inclus dans les plans démontrent une construction conforme aux standards actuels, avec des murs bien isolés, une toiture efficace et une fondation durable.
En choisissant ce modèle, vous optez pour une maison polyvalente, adaptée autant à une construction neuve qu’à un projet personnalisé. Ce type de plan est particulièrement recherché au Québec pour sa capacité à combiner tradition, confort et valeur à long terme.










